Ihr Team

Sebastian Uhlig
Beruf
| ab 2024 | Uhlig und Klein Ingenieure |
| 2021 – 2023 | Uhlig Ingenieurdienstleistungen |
| 2019 – 2021 | hydrograv GmbH – Bauleiter, Einkauf, Vertrieb, Kalkulation |
| 2013 – 2015 | SELL GmbH – Konstruktion & Projektleitung |
| 2012 – 2013 | ontec automation GmbH – Konstruktion & Projektleitung |
Ausbildung
| 2020 – 2021 | TU Dresden – Dipl.-Ing. Maschinenbau & Energietechnik |
| 2017 – 2019 | IHK Nürnberg – Technischer Betriebswirt |
| 2008 – 2012 | Fachhochschule Hof – Bachelor Maschinenbau |
Daniel Klein
Beruf
| ab 2024 | Uhlig und Klein Ingenieure |
| 2021 – 2023 | ReSigma Konstruktion & Berechnung – Konstruktion & Berechnung |
| 2021 – 2023 | Schwarz&Schmidhofer GmbH – Bau- & Projektleitung |
| 2019 – 2021 | Plakoma GmbH – Konstruktion & Projektleitung |
| 2015 – 2018 | Dillinger Hütte AG – Stahlbauschlosser |
Ausbildung
| 2023 | Befähigte Person Druckgeräte |
| 2022 | Befähigte Person Schlauchleitungen |
| 2020 – 2021 | SLV Saarbrücken – Schweißfachingenieur |
| 2019 – 2021 | HTWsaar – Master Engineering & Management |
| 2016 – 2019 | HTWsaar – Bachelor Maschinenbau |

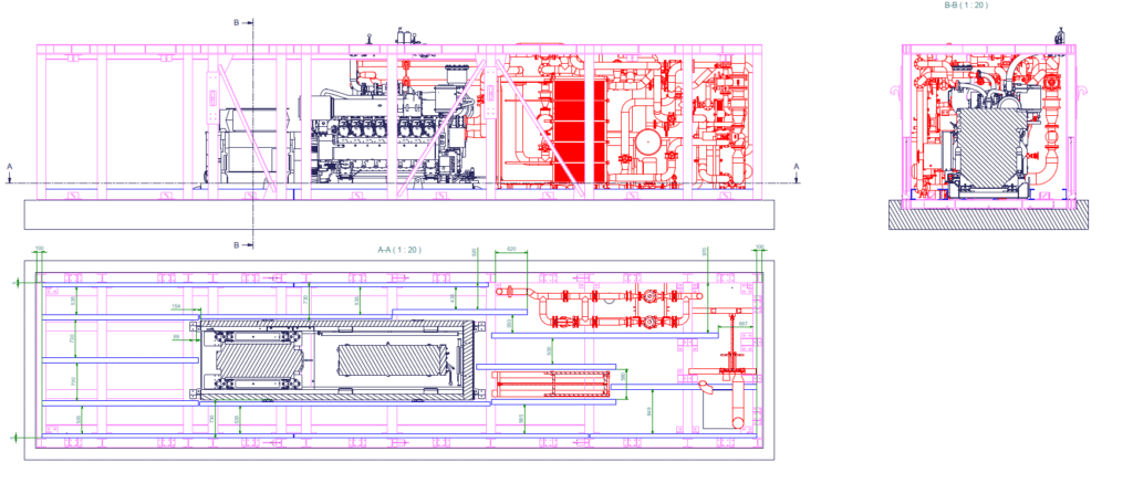
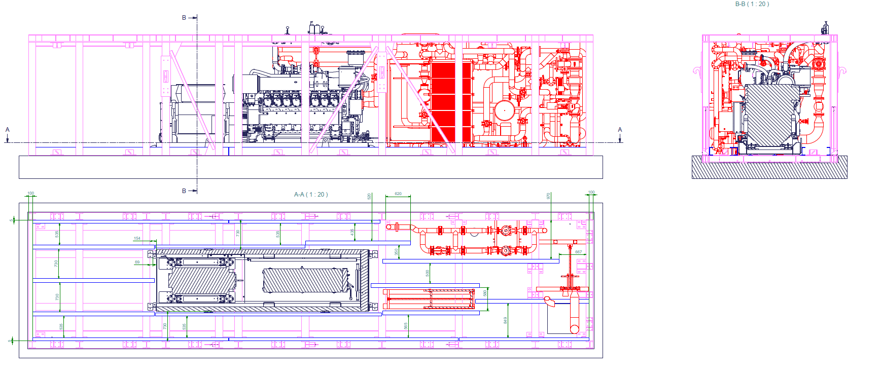
Unsere Philosophie
Jede unserer Konstruktionen muss
unseren strengen Qualitätsansprüchen genügen.
Selbstverständlich erhalten Sie als Ergebnis ein hoch detailliertes
3D-Modell mit vollständigen Fertigungszeichnungen,
Anfragezeichnungen für Zukaufteile und prüffähige Berechnungsberichte.
Eine ordentliche, verständliche Montageplanung und eine
projektbegleitende Beratung sind für uns nicht nur eine Option
Sauber konstruierte Schnittstellen zu anderen Gewerken,
gehören bei uns in jedem Projekt auf unsere To-Do-Liste.































